Москва

ВР-280-46 ВЗДУ — Вентилятор радиальный (центробежный) дымоудаления взрывозащищенный

ВР-280-46 ВЗДУ — Вентилятор радиальный (центробежный) дымоудаления взрывозащищенный – поставка оптом и в розницу от компании «ПромЭлВент». Цены от производителя: доставка по Москве и всей России. Скидки на объем!
ВР-280-46 ВЗДУ — Вентилятор радиальный (центробежный) дымоудаления взрывозащищенный
0 5 5 1
(1)

Артикул ARONE-67

Доставка по Москве в пределах МКАД: мелкогабаритный груз от 1 000 руб., крупногабаритный груз от 2 500 руб.,
за МКАД: 1 км – 100 руб.
Полный цикл работ: подберем, спроектируем и установим оборудование
Работа с персональным менеджером
noun Нашли дешевле? Звоните, договоримся!
noun Заявки принимаются с реквизитами через почту
Условия оплаты
  • Предоплата
  • Постоплата
  • Частичная оплата
Способы оплаты
  • Безналичная оплата
Условия доставки
  • Доставка до адреса
  • Доставка до терминала ТК
  • Самовывоз со склада

ВР-280-46 ДУ — Вентилятор Радиальный ДымоУдаления со спиральным корпусом

Предназначен для применения в системах вентиляции, воздушного отопления и системах вытяжной противодымной вентиляции.

Вентилятор состоит из:

  • спирального корпуса;
  • опорной рамы;
  • рабочего колеса (32 вперед загнутые листовые лопатки);
  • асинхронного двигателя.
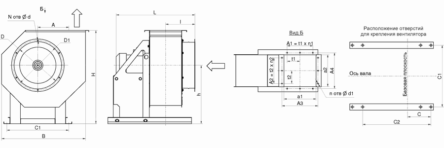
Обозначения

ВР-280-46 - 5 ВЗДУ - 6 00 - Пр 90 - (400) - 3 кВт
---------   - ----   - --   -- --   -----   -----
    1       2  3     4 5    6  7      8       9

1 - Тип вентилятора
2 - Номер вентилятора (диаметр рабочего колеса в дм)
3 - Назначение вентилятора
4 - Количество полюсов электродвигателя
5 - Вариант исполнения (необязательный элемент)
6 - Направление вращения (Пр - правое, Лев - левое)
7 - Угол разворота, град.
8 - Максимальная температура перемещаемой среды, °С
9 - Мощность двигателя, кВт
Тип вентилятора Размеры, мм N n n1 n2
h I Lmax A D D1 d d1 a1 a2 A1 A2 A3 A4 t1 t2 C C1 C2
ВР-280-46-2 ДУ 256 112 500 130 200 220 7 7 140 140 100 100 160 160 100 100 69 210 250 6 8 1 1
ВР-280-46-2,25 ДУ 288 126 563 146 225 245 7 7 158 158 100 100 178 178 100 100 77 240 280 6 8 1 1
ВР-280-46-2,5 ДУ 320 187 625 162 250 270 7 7 175 175 100 100 205 205 100 100 86 260 315 8 8 1 1
ВР-280-46-2,8 ДУ 360 198 625 182 280 310 7 7 196 196 100 100 225 225 100 100 96 260 350 8 8 1 1
ВР-280-46-3,15 ДУ 410 210 625 205 315 345 7 7 221 221 200 200 255 255 100 100 148 260 400 8 12 2 2
ВР-280-46-3,55 ДУ 455 225 750 231 355 385 7 7 249 249 200 200 280 280 100 100 155 340 400 8 12 2 2
ВР-280-46-4 ДУ 520 240 820 260 400 440 7 7 280 280 200 200 310 310 100 100 165 350 410 8 12 2 2
ВР-280-46-4,5 ДУ 576 257 950 292 450 490 7 7 315 315 200 200 345 345 100 100 190 380 430 8 12 2 2
ВР-280-46-5 ДУ 650 275 1025 324 500 540 7 7 350 350 300 300 380 380 100 100 211 410 460 12 16 3 3
ВР-280-46-5,6 ДУ 690 296 1150 364 560 600 7 7 392 392 300 300 425 425 100 100 230 460 510 12 16 3 3

Рейтинг
Есть вопросы? Мы поможем!
оперативный ответ
предоставление бюджетного варианта с сохранением технических характеристик
закрываем потребности на 100%
 
Уважаемые клиенты!
В связи с ростом цен у поставщиков цены на сайте действительны при оплате в текущий момент времени. Во всех остальных случаях они могут быть пересмотрены.
Компания «ПромЭлВент» готова гарантировать сроки поставки из наличия на складах компании. В случае поставки со складов поставщиков или «под заказ» сроки поставки не могут быть точно названы в момент заказа.
Просьба отнестись с пониманием к сложившейся ситуации.

© «ПромЭлВент» – поставки инженерных систем, 2012-2026

Вопросы о доставке в Москве
E-mail: info@promelvent.ru
Телефоны: +7 (495) 369-06-95

 

Цены не являются публичной офертой и носят информационный характер. Подробная информация у менеджеров.